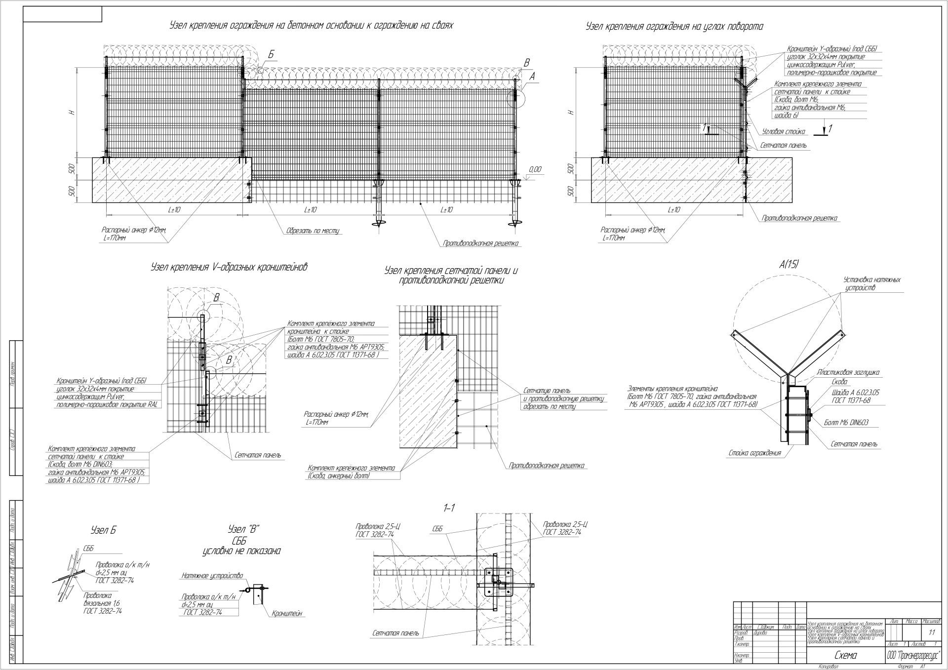
Чертеж «Узел крепления ограждения на бетонном основании к ограждению на сваях»
🔍 Нажмите для увеличения

Чертеж «Узел крепления ограждения на бетонном основании к ограждению на сваях»

Описание технического решения

Краткая инструкция по монтажу сетчатого ограждения 3D на винтовых сваях

Монтаж ограждений начинается с установки винтовых свай по заранее намеченным точкам. Для завинчивания сваи требуется минимум два человека. Сваи вкручиваются вручную или с помощью электромеханического ключа, либо с использованием специальной техники. Сваи устанавливаются строго вертикально, что контролируется с помощью различных инструментов или машин. Для удобства установки в грунте делают выемку. Сваи завинчиваются так, чтобы фланец опоры находился на уровне грунта после установки. Затем на фланец винтовой сваи крепится столб с помощью крепежного набора или сварки. Столб выравнивается по уровню при помощи винтовой системы выравнивания фланца и крепежа (см. рисунки 5 и 6). После завершения работ выемка засыпается крупнозернистым песком или щебнем фракции 3-10 мм.

Монтаж винтовых опор и забивных свай возможен практически на любых типах почв и при любых климатических условиях, даже вблизи подземных коммуникаций. Работы можно проводить в любое время, независимо от рельефа местности и типа грунта. При температуре ниже 0°C используются специальные добавки. Для установки опор предпочтительнее применять механизированную технику. При использовании ручных инструментов возможно предварительное бурение небольших отверстий. Сначала на участке проводят разметку периметра ограждения и определяют места для опорных столбов.

Обычно стандартную винтовую сваю длиной 2 м, с диаметром ствола 108 мм, толщиной стенки 4 мм, диаметром лопасти до 300 мм и толщиной лопасти 5 мм, завинчивают на глубину от 1500 до 2000 мм, в зависимости от глубины промерзания грунта. Винтовые сваи длиной 2 м и диаметром 108 мм также устанавливают на глубину от 1500 до 2000 мм. Поскольку сваи полые внутри, при необходимости внутрь заливают бетон для увеличения прочности. Если ограждение временное, бетон не используется. Затем выполняется монтаж столба с помощью фланцевого соединения, регулируется его положение строительным уровнем и натянутым шнуром между контрольными столбиками.

Также можете ознакомиться с продукцией спиральный барьер безопасности, который устанавливается на данный тип сетчатого ограждения

Другие чертежи раздела