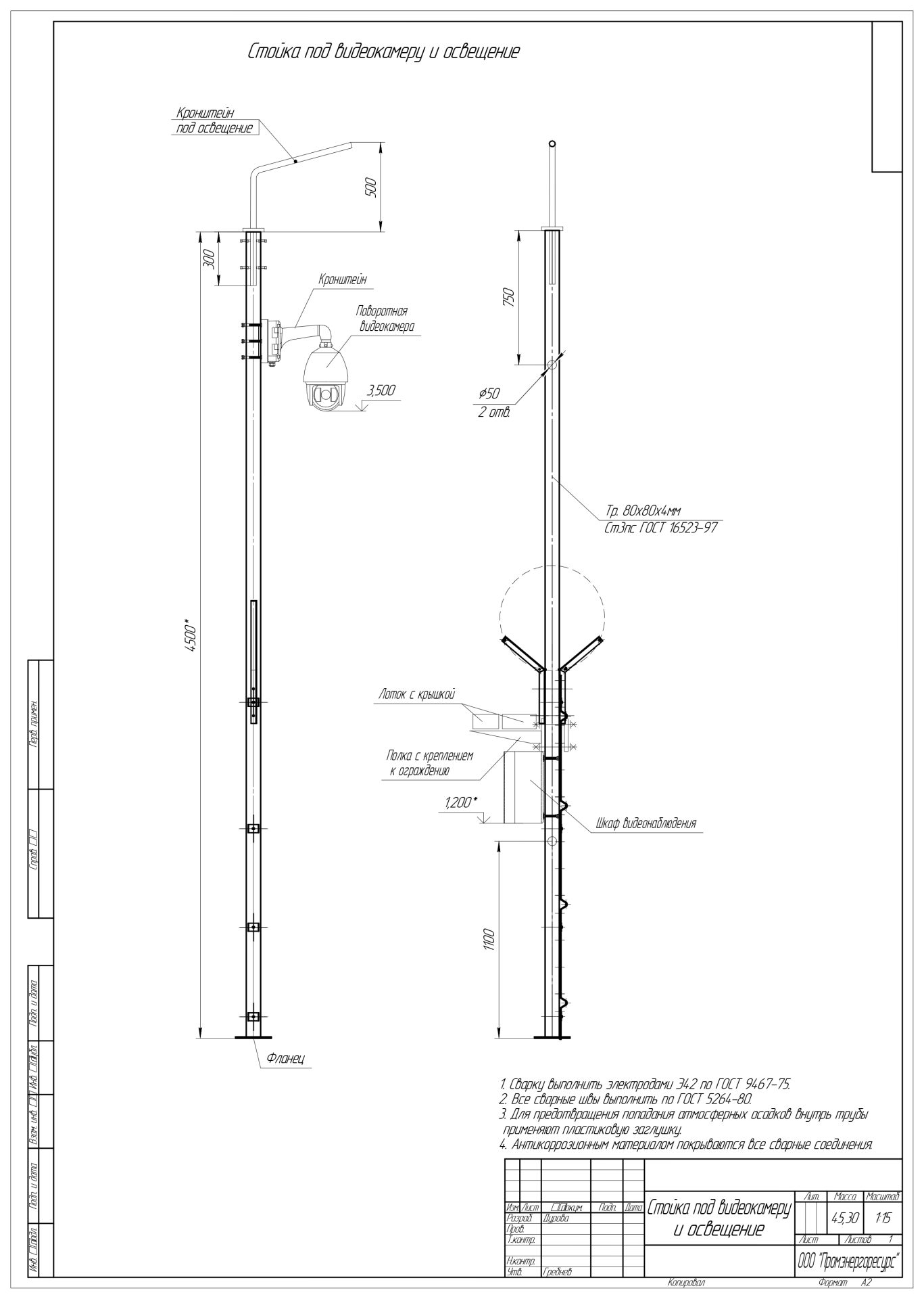
Чертеж «Столб (стойка) под видеонаблюдение»
🔍 Нажмите для увеличения

Чертеж «Столб (стойка) под видеонаблюдение»

Описание технического решения

Краткое описание правил при монтаже "Стойки (столба) для крепления видеонаблюдения"

1. Сварка электродами Э42 по ГОСТ 9467-75**
Для выполнения сварочных работ используются электроды марки Э42 в соответствии с требованиями ГОСТ 9467-75. Эти электроды обеспечивают высокое качество сварных швов и соответствуют всем необходимым стандартам для надежного и долговечного соединения.

2. Сварные швы по ГОСТ 5264-80**
Все сварные швы должны выполняться в строгом соответствии с ГОСТ 5264-80. Этот стандарт определяет требования к качеству и технологии выполнения сварных соединений, что гарантирует их прочность и долговечность.

3. Применение пластиковых заглушек**
Для предотвращения попадания атмосферных осадков внутрь трубы рекомендуется использовать пластиковые заглушки. Это обеспечит защиту труб от коррозии и других повреждений, вызванных влагой и загрязнениями.

4. Антикоррозионная защита сварных соединений**
Все сварные соединения необходимо покрыть антикоррозионным материалом. Это обеспечит дополнительную защиту от коррозии и увеличит срок службы сварных конструкций, особенно в условиях повышенной влажности или агрессивной окружающей среды.

Другие чертежи раздела