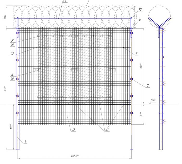
Инженерное заграждение «СТРАЖА 1СМВ» ТМРВ.425729.001ТУ
Инженерное заграждение «СТРАЖА 1СМВ» предназначено:
Для обеспечения физической защиты объектов оборонного и специального назначения, от несанкционированного проникновения (доступа) физических лиц, техники и животных на территорию охраняемых объектов. Изделие может использоваться как в составе интегрированных комплексов средств охраны, так и самостоятельно.
