Чертеж «Калитка с трубчатым заполнением»
🔍 Нажмите для увеличения

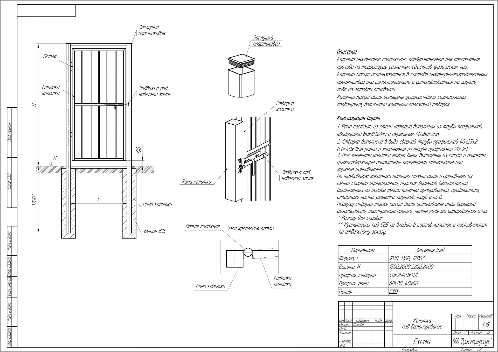
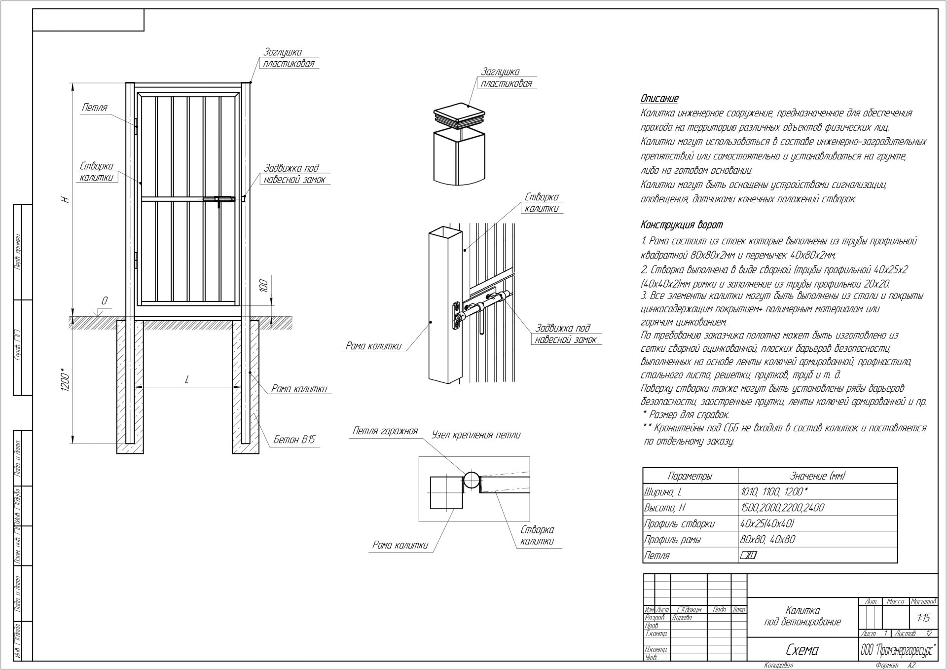
Чертеж «Калитка с трубчатым заполнением»

Описание технического решения

Калитка с трубчатым заполнением

Калитка инженерное сооружение, предназначенное для обеспечения прохода на территорию различных объектов физических лиц.

Калитки могут использоваться в составе инженерно-заградительных препятствий или самостоятельно и устанавливаться в грунте, либо на готовом основании.

Другие чертежи раздела