Чертеж «Ворота распашные»
🔍 Нажмите для увеличения

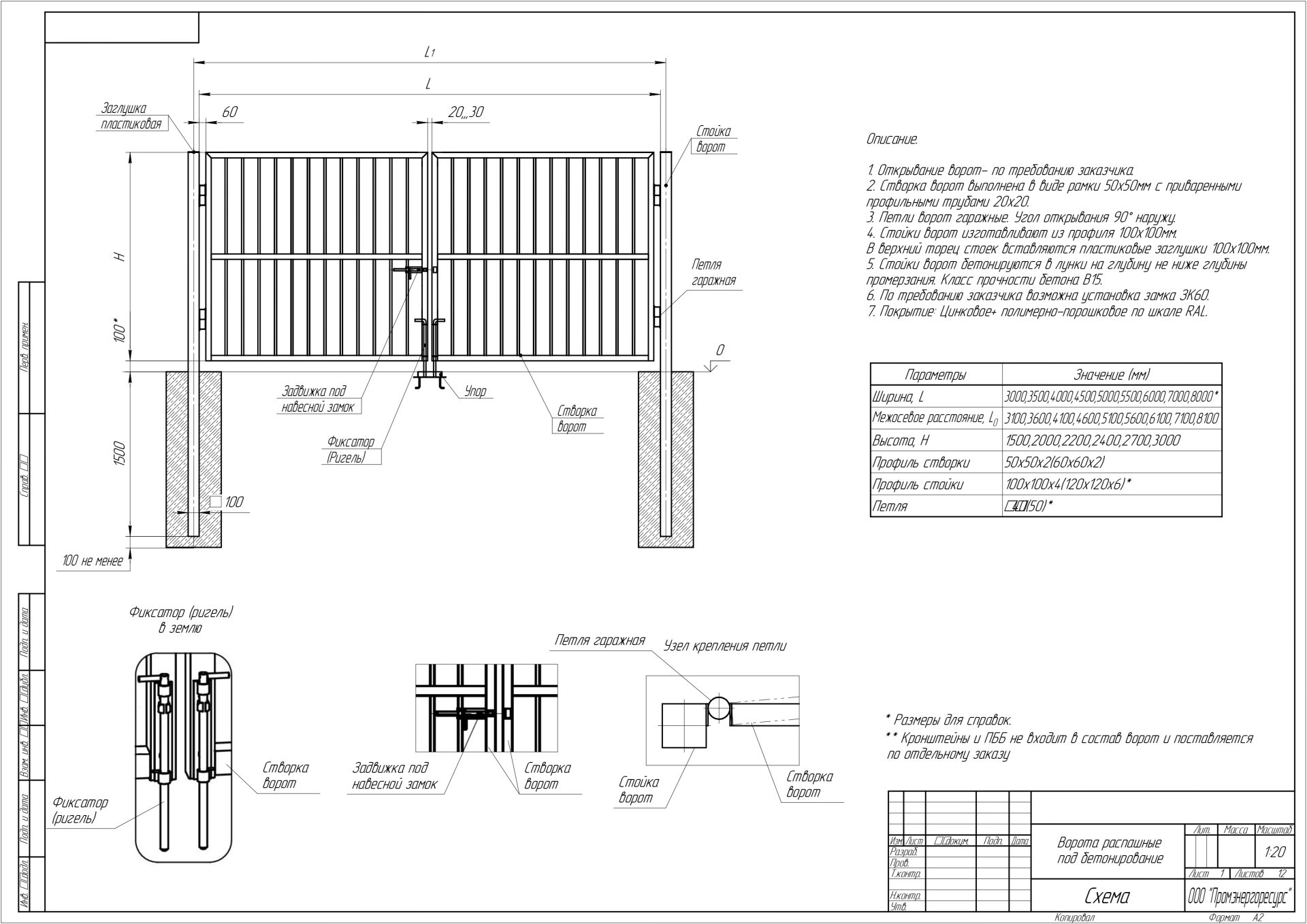
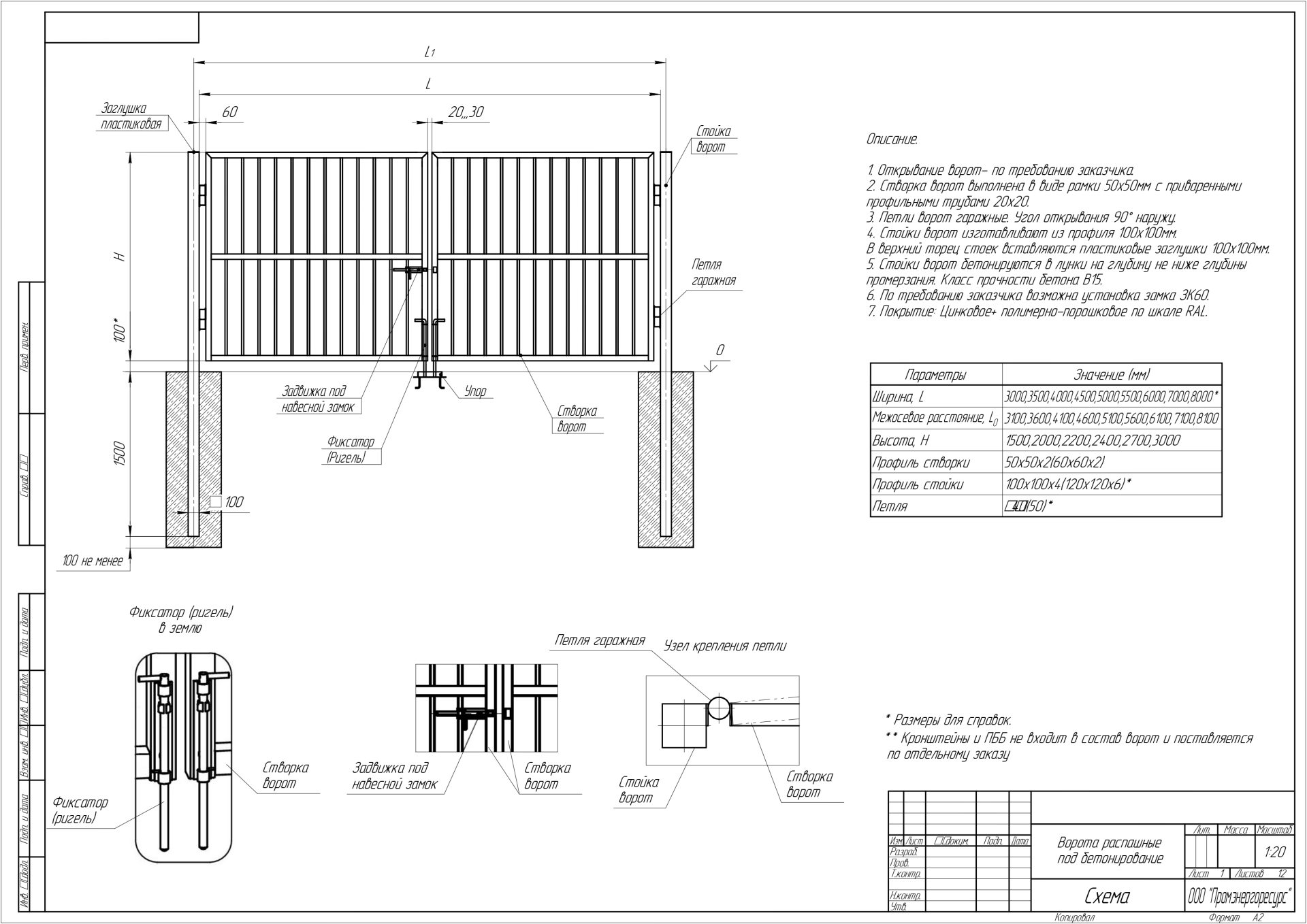
Описание технического решения

Ворота распашные

Вот ключевые характеристики наших ворот:

  1. Открывание ворот: Ворота могут быть настроены для открывания в соответствии с вашими требованиями.
  2. Конструкция створки ворот: Створка выполнена в виде прочной рамки 50х50 мм с приваренными профильными трубами 20х20 мм, что обеспечивает долговечность и устойчивость конструкции.
  3. Петли ворот: Мы используем гаражные петли, обеспечивающие угол открывания 90° наружу, что позволяет максимально эффективно использовать пространство.
  4. Стойки ворот: Стойки изготавливаются из профиля 100х100 мм и оснащены пластиковыми заглушками 100х100 мм для защиты от попадания влаги и загрязнений.
  5. Монтаж ворот: Стойки ворот бетонируются в лунки на глубину, не ниже глубины промерзания. Используемый бетон класса прочности В15 гарантирует надежность и долговечность установки.
  6. Установка замка: По требованию заказчика возможна установка замка ЗК60, что обеспечивает дополнительную безопасность.
  7. Покрытие ворот: Ворота покрыты цинком и полимерно-порошковым покрытием по шкале RAL, что обеспечивает защиту от коррозии и долговечность эксплуатации.

Преимущества наших ворот:

  • Индивидуальный подход: Мы учитываем все пожелания заказчика при изготовлении ворот.
  • Высокое качество материалов: Используем только проверенные и надежные материалы.
  • Долговечность: Благодаря качественным материалам и профессиональному монтажу наши ворота служат долгие годы.
  • Безопасность: Возможность установки замка повышает уровень безопасности вашей территории.

Закажите ворота у нас и получите:

  • Консультацию специалистов по выбору и установке ворот.
  • Индивидуальный проект ворот под ваши требования.
  • Качественную установку опытными мастерами.
  • Гарантию на все виды работ и материалов.
Другие чертежи раздела