Ворота механизированные откатные
Ворота механизированные откатные предназначены для ограничения доступа на территорию объекта транспортных средств и физических лиц.
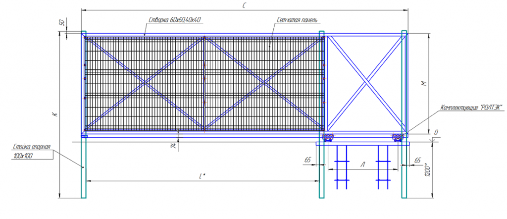
ворота изготавливаются двух видов: одностворчатые или двухстворчатые. Проезжая часть ворот от 4 до 36 м. Рама ворот выполнена из сортового проката. Полотно ворот может быть изготовлено из профильного листа, ССЦП, ПББ или ПББ «Акация». Привод ворот электромеханический, система управления пультовая (стационарный или переносной пульт).
Пример ворот

В нашем динамичном мире, где каждая минута имеет значение, нам так важно иметь надежное и эффективное решение для обеспечения безопасности и удобства. Мы предлагаем вам ознакомиться с одним из самых инновационных продуктов на рынке - уникальными откатными конструкциями, которые идеально сочетают в себе функциональность и эстетическую привлекательность.
Эти изделия не только защитят ваше имущество от проникновения, но и сделают процесс открывания и закрывания ворот максимально простым и плавным.
Возможности использования этих откатных конструкций не ограничиваются одной сферой деятельности. Они подходят для множества объектов - от частных домов и коттеджей до промышленных предприятий и офисных комплексов.
Преимущества, которые вы получаете с нашими откатными воротами, просто несравнимы. Они обладают высокой прочностью и долговечностью, что гарантирует долгий срок эксплуатации. Кроме того, мы предлагаем разнообразные варианты дизайна и отделки, чтобы ваши ворота идеально вписывались в общую концепцию вашего объекта.
Конструкция откатных ворот
Несмотря на то, что существует множество вариантов конструкции откатных ворот, а также областей применения – от торговых центров до аэропортов, большинство откатных ворот состоят из следующих элементов:
- Рама из стального т-образного профиля, как правило, 20х1,5; 40х1,5; 60x1,5. Как правило, он должен быть оцинкован, что позволит значительно продлить срок его службы и избежать выхода из строя.
- Несущая балка, которая обеспечивает надежность всей конструкции. Она может быть выполнена, также из п-образного профиля или швеллера.
- Полотно, она может быть сделано, из того же материалы, что и забор. Например, из профлиста, евроштакетника, и т.д. Если ворота устанавливаются в гараж, возможно дополнительно установить утеплитель между наружным и внутренним полотном, например, пеноплекс или минеральную вату. Это позволит сохранить теплоизоляцию в помещении.
- Улавливатели, которые фиксируют ворота в нужном положении.
- Держатели, используются для обеспечивают устойчивое положение ворот
- Рейка, которая с помощью зубчатых элементов передает крутящий момент
- Ролики, которые перемещают полотно по рельсу
- Электропривод, который передает движение к зубчатой рейке.
Также для современных откатных ворот необходимо добавить в комплектацию фотоэлементы, радиоприемника, а также направляющая рейка для хода секции.
Чтобы ворота прослужили вам дольше, а также не произошло аварийного открытия или закрытия – необходимо хотя бы раз в год обслуживать откатные ворота. Но большинство специалистов советуют проводить осмотр после каждого сезона. А для безопасности ворот стоит добавить в комплектацию, антивандальные замки и другие устройства. Также стоит установить несколько камер, для контроля за въездом в дом.
Наша команда профессионалов готова предложить вам наилучшее решение, которое удовлетворит все ваши требования и пожелания. Обязательно свяжитесь с нами прямо сейчас и начните наслаждаться всеми преимуществами этих уникальных откатных ворот!
Из какого материала делаются откатные ворота?
Откатные ворота могут быть изготовлены из различных материалов, таких как сталь, алюминий или дерево. Материал выбирается в зависимости от предпочтений клиента, функциональных требований и стилистики окружающего ландшафта. Наши ворота изготавливаются из высококачественных материалов, обеспечивая прочность, надежность и долговечность конструкции.
Можно ли установить автоматическую систему управления для откатных ворот?
Да, возможна установка автоматической системы управления для откатных ворот. Мы предлагаем различные варианты автоматизации. Автоматическая система позволяет управлять воротами из автомобиля или с помощью приложения на смартфоне, что повышает комфорт и безопасность использования.
Каковы основные преимущества откатных ворот?
Откатные ворота имеют несколько преимуществ. Во-первых, они экономят место, так как при открывании они не занимают пространство на участке или перед воротами. Во-вторых, они легко устанавливаются и обслуживаются. Кроме того, откатные ворота обычно являются более надежными и долговечными в сравнении с другими типами ворот.
Сдвижные откатные | Ворота с калиткой | Промышленные ворота | Роллетные системы | Откатные автоматические ворота | Металлические откатные ворота | Алюминиевые ворота | Распашные ворота | Секционные ворота | Уличные ворота | Ворота откатные консольного типа | Заказать ворота автоматические откатные | Заказать ворота промышленные откатные | Ворота противопожарные откатные | Купить откатные ворота с калиткой | Ворота автоматические распашные | Ворота откатные с приводом