ПЭРТ 0402.00.000 - Промэнергоресурс
ПРОМЭНЕРГОРЕСУРС
Загрузка сайта…

Варианты связи

Позвонить: 8-800-222-13-48 Позвонить: +7(473)233-34-20
ПЭРТ 0402.00.000

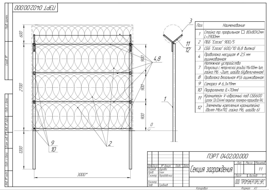
Компания "ПРОМЭНЕРГОРЕСУРС" предлагает армированную колючую ленту и плоские барьеры безопасности ПББ 600 и ПББ 900 для надежной защиты объектов, подходящие для различных клиентов.

Заказать звонок
Информация о товаре

ПЭРТ 0402.00.000

ПЭРТ 0402.00.000

Для повышения эффективности охраны объектов активно применяется армированная колючая лента. Из нее изготавливаются плоские конструкции, которые обладают высокими защитными свойствами. Эти барьеры, в отличие от спиральных аналогов, имеют менее агрессивный внешний вид, что делает их особенно подходящими для мест с большим потоком людей. Компания "ПРОМЭНЕРГОРЕСУРС" предлагает качественные модели ПББ 600 и ПББ 900, которые поставляются с кронштейнами и крепежом для простого монтажа. Данная продукция подходит как для частных заказчиков, так и для предприятий. Установка такого барьера гарантирует надежную защиту от несанкционированного проникновения. "ПРОМЭНЕРГОРЕСУРС" предоставляет плоские барьеры безопасности (ПББ) с использованием колючей ленты АКЛ различных модификаций, что позволяет выбрать оптимальное решение для каждого клиента.

Получите гарантированную скидку при заказе сегодня!
Мы свяжемся с вами в самое ближайшее время!
другие виды ограждений
Заявка отправлена!

Не уходите!

Получите индивидуальную скидку на нашу продукцию — просто оставьте номер телефона